Details

In a community known for its lifestyle, this is the home that delivers on it. Set on a private, tree-lined homesite, 389 Parish Farms Drive blends timeless Southern charm with thoughtful, modern upgrades––all just three years old and meticulously maintained. This 4-bedroom, 3.5-bath home with a dedicated office and two loft spaces offers the space and layout today's buyers are searching for, with double wrap-around porches that create standout curb appeal and invite you to slow down and enjoy the setting. Inside, the home lives like new construction... but better. With over $85,000 in upgrades already completed, every detail has been elevated––so you can move in and enjoy from day one, without the time, expense, or decision fatigue.
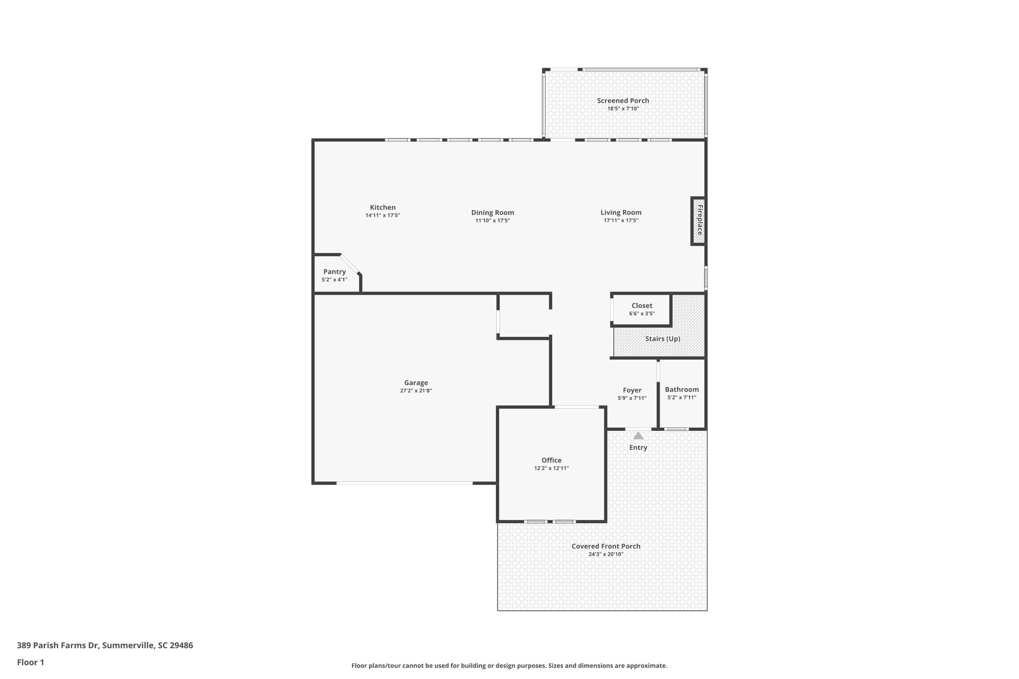
The main level is both functional and beautifully finished, featuring a custom-designed living space with a faux stone electric fireplace, wood mantle, built-in cabinetry, and floating wood shelving that adds warmth and character. The gourmet kitchen is a true centerpiece, complete with quartz countertops, a gas range with hood, double ovens, soft-close cabinetry, added pantry shelving, and pendant lighting––designed for both everyday living and entertaining.
A thoughtfully designed drop zone with butcher block seating and built-in storage keeps daily life organized, while designer lighting, accent walls, and custom trim work throughout the home create a polished, elevated feel.
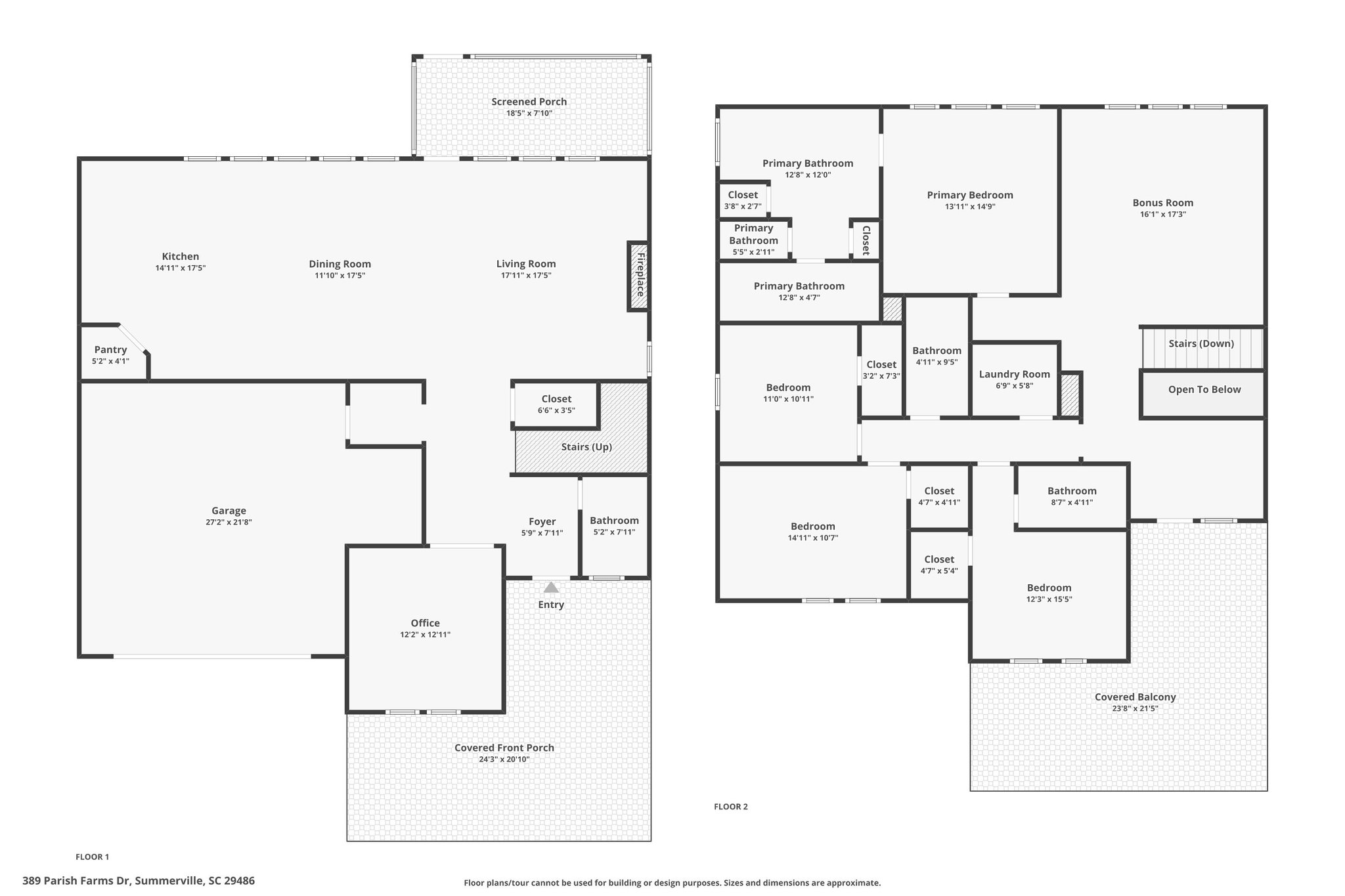
Upstairs, two flexible loft spaces offer room to spread out––ideal for a playroom, game/media room, or additional work-from-home setup. The secondary bedrooms are well-designed with updated finishes and lighting, while the bathrooms have been fully upgraded with tiled showers, niches, and framed mirrors. The spacious primary suite offers a calm retreat with an accent wall, upgraded fixtures, and a neutral palette that feels both fresh and timeless.
Behind the scenes, the home has been thoughtfully refreshed with full interior repainting using washable Sherwin Williams Emerald paint and freshly painted ceilings for a crisp, clean finish.
Step outside to a private, fully fenced backyard backing to trees––offering both privacy and space that's increasingly hard to find in newer construction. The outdoor area has been carefully upgraded with a floating-edge concrete patio ideal for entertaining, a separate dog run, extended driveway, enhanced landscaping with concrete borders, and drainage improvements with french drain and rain gutters for long-term function. Added exterior lighting and security features, including Ring cameras and motion lighting, complete the space.
This is the version of new construction everyone hopes for––finished, upgraded, and truly move-in ready.
And beyond the home itself, the lifestyle here is what truly sets it apart.
Welcome to Carnes Crossroads––the Charleston area's premier master-planned community and the Lowcountry's only true agrihood, where everyday living is centered around connection, wellness, and a true sense of community.
From scenic lakes and miles of walking and biking trails to thoughtfully designed parks, gathering spaces, and a vibrant calendar of community events, Carnes Crossroads offers a lifestyle that feels both elevated and effortless. Residents enjoy multiple resort-style pools––including a three-story waterslide and splash pads––along with a modern fitness lodge, pickleball and tennis courts, basketball courts, a dedicated dog park, and multiple playgrounds placed throughout the community.
Outdoor workout stations along the trails make it easy to stay active, while open green spaces, lakes, and gathering areas create endless opportunities to connect, unwind, and enjoy the Lowcountry lifestyle. Spend afternoons fishing in the neighborhood's lakes, gathering with neighbors at the iconic Green Barn or around the numerous fire pits, unwinding at The Lakehouse, or enjoying the community's working farm––with its fresh produce, Farm Store, and seasonal experiences that bring it all together.
With on-site schools kids can walk or bike to, dining, shopping (including the newly opened Publix), healthcare, and everyday conveniences woven seamlessly into the neighborhood––plus easy access to Charleston––Carnes Crossroads offers a lifestyle that's truly hard to match.

  • $630,000
  • 4 Bedrooms
  • 3.5 Bathrooms
  • 2,908 Sq/ft
  • Built in 2023
  • MLS: 26009351

Images

Videos

Floor Plans

3D Tour

Contact

Feel free to contact us for more details!